Preview

This is your website preview.

Currently it only shows your basic business info. Start adding relevant business details such as description, images and products or services to gain your customers attention by using Boost 360 android app / iOS App / web portal.

BHARATDESIGNSERVICES 6523ec5a8447cfdc005f53a1 Products https://www.bharat-group.com
    • update image
    • Burial Ground Details : Here is a comprehensive overview of a Burial Ground Plan, including layout, ...

    • update image
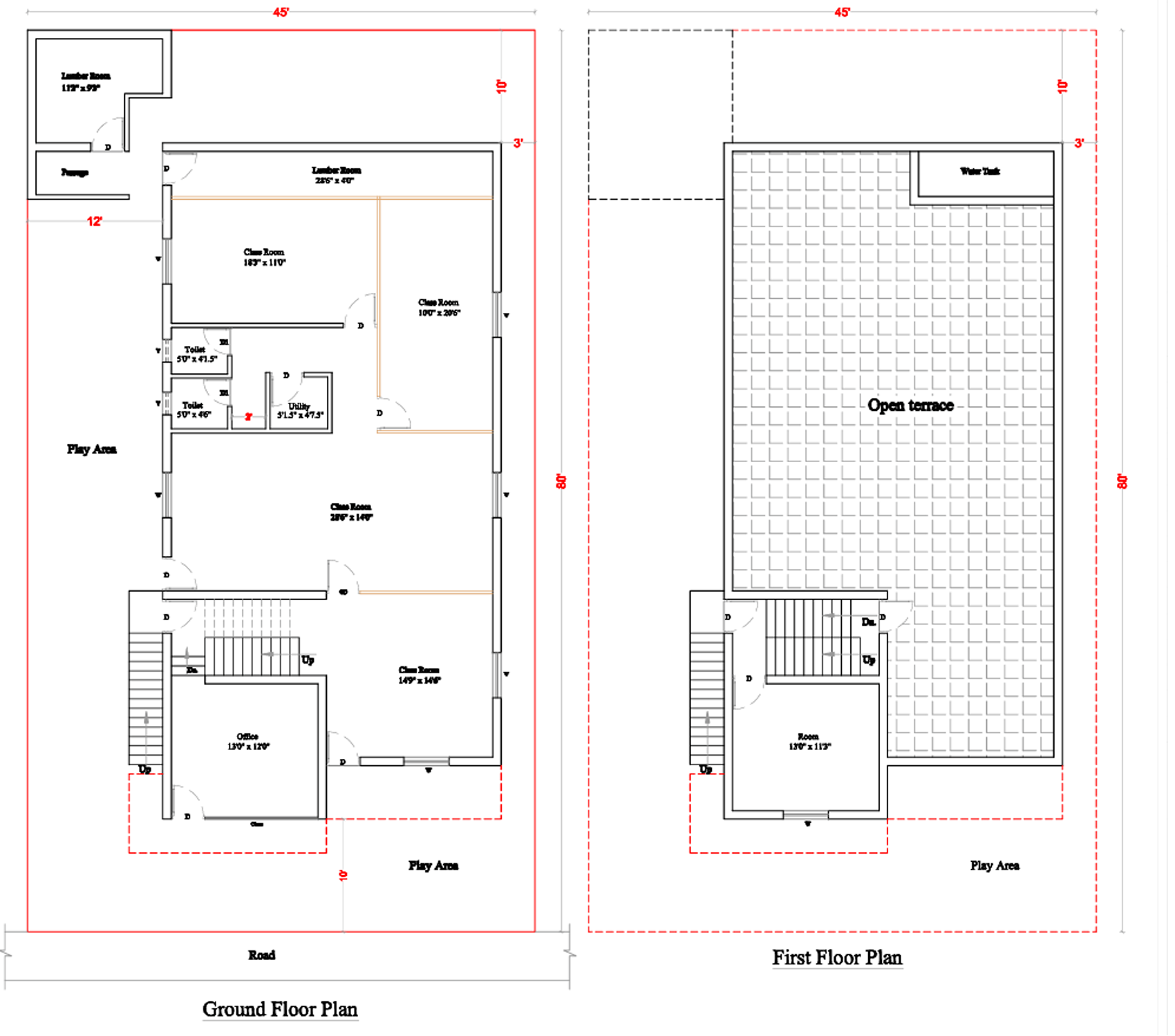
    • School building plan : A school building plan is a...

    • update image
    • Institute building plan : Below is a clear, practical guide for INSTITUTE / EDUCATIONAL BUILDING pl...

    • update image
    • School building plan : Reating a school building ...

    • update image
    • Scheme plan : A Scheme Plan is a detailed drawing ...

    • update image
    • Synthetic Sports Flooring :Synthetic sports floori...

    • update image
    • Glass Mosaic Flooring:Glass mosaic flooring is an ...

    • update image
    • GLASS MOSAIC DETAILING:Glass mosaics are decorativ...

Still searching for
eco friendly burial zones?

Still searching for
eco friendly burial zones?

Chat with us